[Estate]
Brisbane, Rochedale, QLD, 4123,$2,029,584 - $2,205,865
*Please be advised that some lots/units may need confirmation of availability. Kindly ensure to check availability first by emailing or phoning us.*
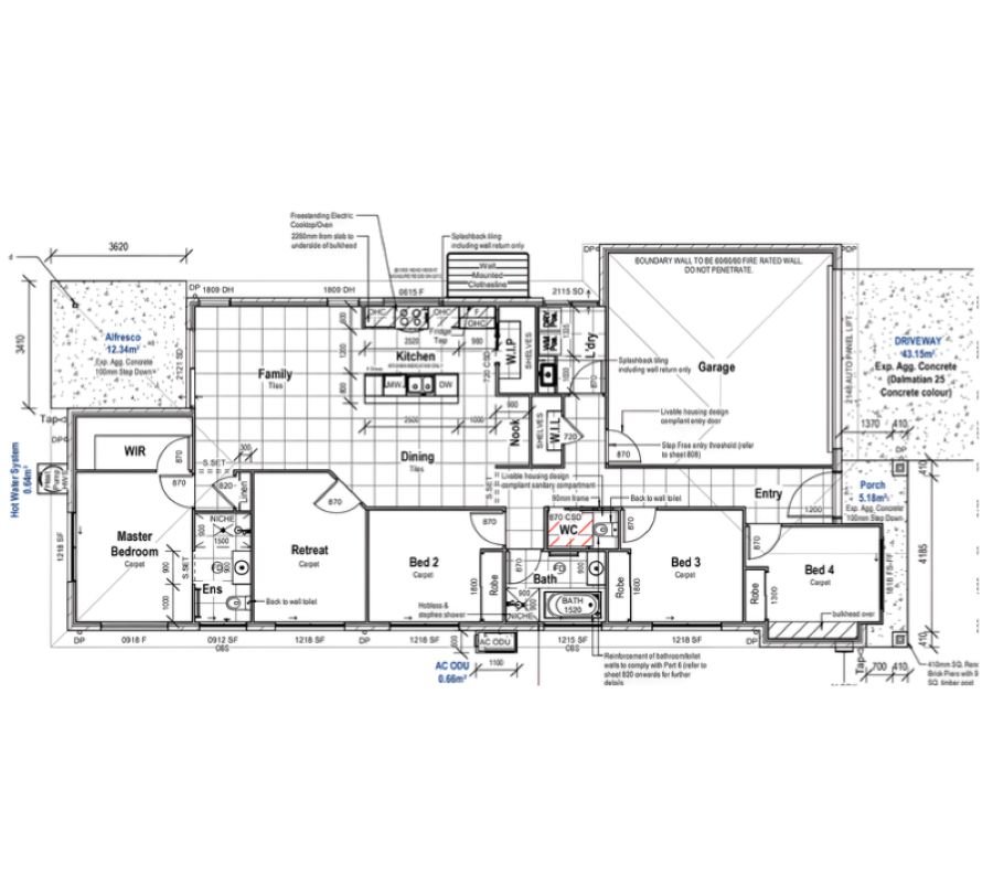
Positioned within the prestigious Pinnacle precinct of Arise Estate in Rochedale, this refined home delivers an elevated lifestyle in one of Brisbane’s most sought-after residential communities. Designed with comfort and sophistication in mind, the residence features a seamless flow between living spaces, enhanced by abundant natural light and quality finishes. The thoughtful layout creates an inviting environment ideal for both relaxed family living and stylish entertaining.
Surrounded by landscaped streets and green open spaces, Arise Estate – The Pinnacle offers a peaceful yet connected lifestyle. Residents enjoy convenient access to major transport routes, respected schools, shopping destinations, and everyday amenities, all while being moments from natural parklands. This property presents an outstanding opportunity to secure a home that combines premium living, strong community appeal, and long-term desirability in the heart of Rochedale.





